Acasă / Imobile în vânzare /Telecentru Sfânta Vinere
Spațiul comercial, Telecentru, SFÂNTA VINERE
250 m²
250 000 €
1000 €/m2
250 m²
Proprietăți
Regiune
Chișinău
Adresa
Sfânta Vinere
Suprafață
250.00
Stare
Reparație euro
Descriere
Spre vânzare spațiul comercial / oficiu amplasat în sectorul Telecentru, vis-a-vis de Kaufland pe str. Sfânta Vinere. Este în apropierea Gării de Sud.
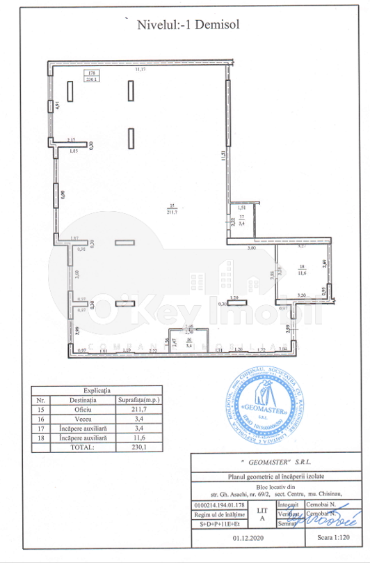
Suprafața totală a imobilului este de 250 mp, repartizat pe 3 nivele.
Caracteristicile obiectului:
– încălzire autonomă;
– aer condiționat;
– comunicații conectate;
– vizibilitate sporită;
– parcare deschisă;
– infrastructură dezvoltată;
– acces facil la transportul public.
Spațiul perfect pentru diverse tipuri de activități comerciale, logistică, cât și producere etc.
PREȚ PROPOȚIONAL AL LUNII AUGUST!
Alte caracteristici
Geamuri termopan
Încălzire autonomă
Internet
Uşă blindată
Cablu TV
Linie telefonică
Atenție! Clienții care aleg să cumpere prin O’Key Imobil se bucură de o gamă completă de servicii profesionale, oferite fără niciun cost suplimentar:
- Analiză corectă a pieței, pentru a ști exact valoarea reală a proprietății dorite;
- Verificare juridică atentă, cu pregătirea tuturor actelor necesare pentru o tranzacție sigură;
- Spațiul perfect pentru diverse tipuri de activități comerciale, logistică, cât și producere etc.
Vreau apartament în ipotecă!
Avem peste 745.000 de apartamente, oficii și terenuri.









































