Acasă / Imobile în vânzare /Ciocana Mihail Sadov...
Apartament, Ciocana, MIHAIL SADOVEANU
27 m²
Camere: 1
Băi: 1
Nivel: 12/19
63 900 €
2367 €/m2
27 m²
Camere: 1
Băi: 1
Nivel: 12/19
Proprietăți
Regiune
Chișinău, Ciocana
Adresa
Mihail Sadoveanu
Construcție
Nouă
Stare
Reparație euro
Suprafață
27.00
Camere
1
Nivel
12/19
Băi
1
Descriere
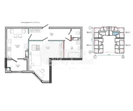
Spre vânzare apartament în bloc nou situat la etajul 12 din 19, în sectorul Ciocana, str. Mihail Sadoveanu.
Locuința are suprafața de 27 mp și este compartimentată în: dormitor, bucătărie, bloc sanitar.
Facilități:
* euroreparație;
* încălzire autonomă;
* geamuri termopane;
* mobilă și tehnică de uz casnic;
* locuri de parcare;
* teren de joacă pentru copii.
Amplasarea locuinței este foarte reușită, în apropiere se află Green Hills Market, Centru Multifuncțional ASP, școală, grădiniță, pădure. Acces facil în toate direcțiile orașului.
Alte caracteristici
Geamuri termopan
Grădiniţă
Imobil nou
Încălzire autonomă
Interfon
Internet
Ascensor
Școală
Supermarket
Teren de joacă
Uşă blindată
Cablu TV
Linie telefonică
Atenție! Clienții care aleg să cumpere prin O’Key Imobil se bucură de o gamă completă de servicii profesionale, oferite fără niciun cost suplimentar:
- Analiză corectă a pieței, pentru a ști exact valoarea reală a proprietății dorite;
- Verificare juridică atentă, cu pregătirea tuturor actelor necesare pentru o tranzacție sigură;
- Spațiul perfect pentru diverse tipuri de activități comerciale, logistică, cât și producere etc.
Vreau apartament în ipotecă!
Avem peste 745.000 de apartamente, oficii și terenuri.







































