Acasă / Imobile în vânzare /Peresecina Peresecin...
Casă, PERESECINA
170 m²
Camere: 4
Nivel: 1
Teren: 13 Ari
290 000 €
1706 €/m2
170 m²
Camere: 4
Nivel: 1
Teren: 13 Ari
Proprietăți
Regiune
Orhei
Adresa
Peresecina
Suprafață
170.00
Camere
4
Nivel
1
Construcție
Nouă
Stare
Reparație euro
Teren
13 Ari
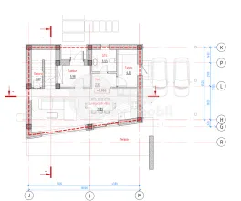
Descriere
Spre vânzare casă situată în Peresecina. Imobilul are o suprafață de 170 mp și este amplasat pe un teren de 13 ari.
Casa are un nivel și este compartimentată funcțional: living cu bucătărie (cu ieșire pe terasă), 3 dormitoare (dintre care unul matrimonial), 2 blocuri sanitare, garderobă, cazangerie, cameră tehnică și terasă.
Dotări și finisaje:
- pereți exteriori și interiori din piatră de calcar (cotileț);
- acoperiș din țiglă ceramică tip „oală”, cu elemente decorative;
- fațadă termoizolată, finisată cu tencuială pe bază de silicon;
- euroreparație realizată cu materiale premium, interior/exterior;
- pardoseală încălzită pe tot perimetrul;
- obiecte sanitare Geberit, HansGrohe;
- bucătărie complet utilată cu tehnică premium;
- mobilier din MDF și furnir cu feronerie Blum;
- ferestre panoramice cu 3 sticle (4 Seasons).
Toate comunicațiile sunt conectate.
Casa are un nivel și este compartimentată funcțional: living cu bucătărie (cu ieșire pe terasă), 3 dormitoare (dintre care unul matrimonial), 2 blocuri sanitare, garderobă, cazangerie, cameră tehnică și terasă.
Dotări și finisaje:
- pereți exteriori și interiori din piatră de calcar (cotileț);
- acoperiș din țiglă ceramică tip „oală”, cu elemente decorative;
- fațadă termoizolată, finisată cu tencuială pe bază de silicon;
- euroreparație realizată cu materiale premium, interior/exterior;
- pardoseală încălzită pe tot perimetrul;
- obiecte sanitare Geberit, HansGrohe;
- bucătărie complet utilată cu tehnică premium;
- mobilier din MDF și furnir cu feronerie Blum;
- ferestre panoramice cu 3 sticle (4 Seasons).
Toate comunicațiile sunt conectate.
Atenție! Clienții care aleg să cumpere prin O’Key Imobil se bucură de o gamă completă de servicii profesionale, oferite fără niciun cost suplimentar:
- Analiză corectă a pieței, pentru a ști exact valoarea reală a proprietății dorite;
- Verificare juridică atentă, cu pregătirea tuturor actelor necesare pentru o tranzacție sigură;
- Spațiul perfect pentru diverse tipuri de activități comerciale, logistică, cât și producere etc.
Vreau apartament în ipotecă!
Avem peste 745.000 de apartamente, oficii și terenuri.






















































