Acasă / Imobile în chirie /Strășeni
Spațiu comercial, STRĂȘENI
109 m²
Tip obiect: Spațiu Comercial
1 630 €
15 €/m2
109 m²
Tip obiect: Spațiu Comercial
Proprietăți
Regiune
Strășeni
Adresa
Strășeni
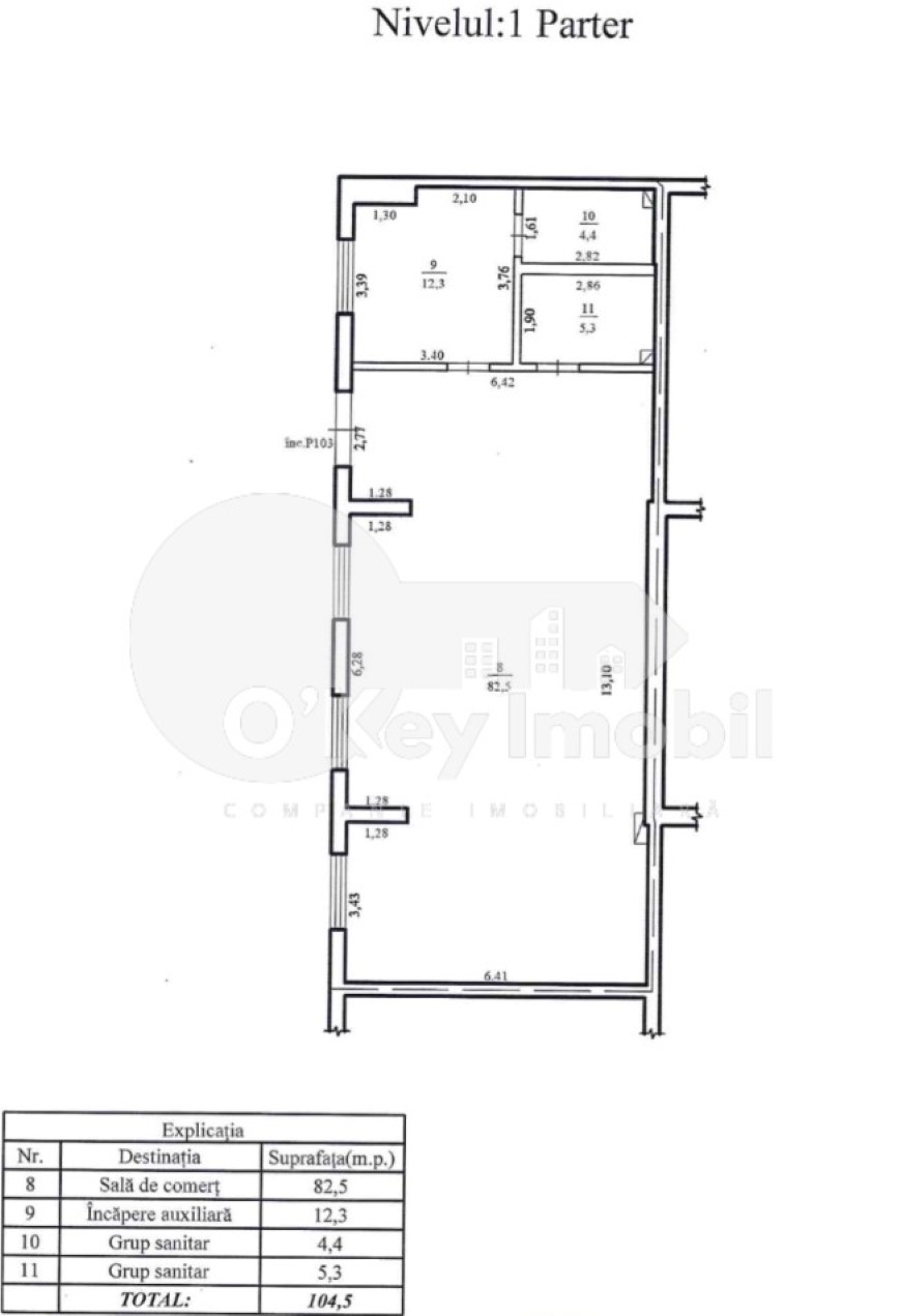
Suprafață
108.50
Destinație
Spațiu Comercial
Stare
Versiune albă
Descriere
Spre chirie spațiu comercial amplasat în or. Strășeni, str. Ștefan cel Mare 40.
Imobilul cuprinde suprafața de 108.5 mp și este situat la parterul unui bloc locativ nou.
Caracteristici:
– variantă albă;
– geamuri panoramice;
– încălzire autonomă,
– prezența tuturor comunicațiilor necesare;
– parcare deschisă.
Perfect pentru oficiu, reprezentanță, show room, beauty salon etc.
Alte caracteristici
Geamuri termopan
Încălzire autonomă
Teren de joacă
Atenție! Clienții care aleg să cumpere prin O’Key Imobil se bucură de o gamă completă de servicii profesionale, oferite fără niciun cost suplimentar:
- Analiză corectă a pieței, pentru a ști exact valoarea reală a proprietății dorite;
- Verificare juridică atentă, cu pregătirea tuturor actelor necesare pentru o tranzacție sigură;
- Spațiul perfect pentru diverse tipuri de activități comerciale, logistică, cât și producere etc.
Vreau apartament în ipotecă!
Avem peste 745.000 de apartamente, oficii și terenuri.








































