Acasă / Imobile în chirie /Telecentru Valeriu Cupcea
Spațiu comercial, Telecentru, VALERIU CUPCEA
220 m²
Tip obiect: Oficiu
1 500 €
7 €/m2
220 m²
Tip obiect: Oficiu
Proprietăți
Regiune
Chișinău
Adresa
Valeriu Cupcea
Suprafață
220.00
Destinație
Oficiu
Stare
Reparație euro
Descriere
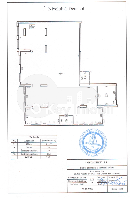
Se oferă spre chirie spațiu comercial amplasat în sectorul Telecentru, str. Valeriu Cupcea.
Suprafața totală a imobilului este de 220 mp, cu teren de 5 ari. Este divizat în 2 nivele.
În curte dispune de o încăpere într-un nivel cu suprafața de 36 mp.
Caracteristici:
– Euroreparație;
– Încălzire autonomă;
– Geamuri termopan;
– Aparate de aer condiționat;
– Curte de tip închis.
Proprietatea este amplasată într-o zonă cu infrastructură bine dezvoltată.
Alte caracteristici
Geamuri termopan
Imobil nou
Încălzire autonomă
Internet
Uşă blindată
Cablu TV
Linie telefonică
Atenție! Clienții care aleg să cumpere prin O’Key Imobil se bucură de o gamă completă de servicii profesionale, oferite fără niciun cost suplimentar:
- Analiză corectă a pieței, pentru a ști exact valoarea reală a proprietății dorite;
- Verificare juridică atentă, cu pregătirea tuturor actelor necesare pentru o tranzacție sigură;
- Spațiul perfect pentru diverse tipuri de activități comerciale, logistică, cât și producere etc.
Vreau apartament în ipotecă!
Avem peste 745.000 de apartamente, oficii și terenuri.






































































