Acasă / Imobile în vânzare /Buiucani Vasile Lupu
Apartament, Buiucani, VASILE LUPU
70 m²
Camere: 3
Băi: 2
Nivel: 12/14
210 000 €
3000 €/m2
70 m²
Camere: 3
Băi: 2
Nivel: 12/14
Proprietăți
Regiune
Chișinău, Buiucani
Adresa
Vasile Lupu
Construcție
Nouă
Stare
Reparație euro
Suprafață
70.00
Camere
3
Nivel
12/14
Băi
2
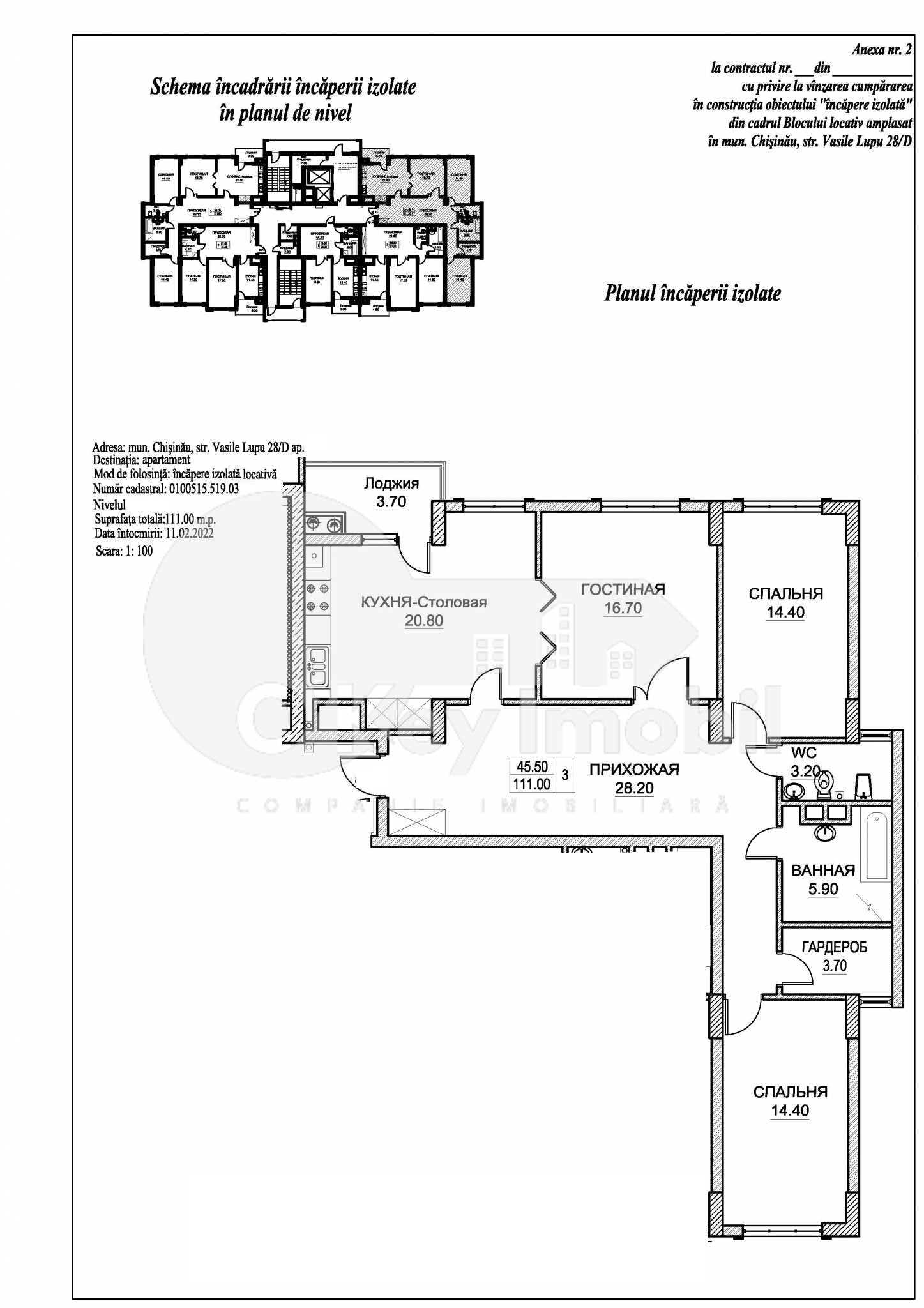
Descriere
Spre vânzare apartament amplasat în bloc nou sectorul Buiucani, str. Vasile Lupu.
Imobilul are suprafața de 70 mp, fiind poziționat la etajul 12 din 14.
Este compartimentat în: 2 dormitoare, bucătărie cu balcon, living, 2 blocuri sanitare, garderobă.
Facilități:
– reparație euro;
– mobilat și dotat cu tehnică de uz casnic;
– geamuri termopan;
– ușă blindată la intrare;
– scara blocului placată cu marmură și granit.
* Bloc construit de compania Exfactor.
Construcția blocului este din beton armat cu umplutura pereților din cărămidă roșie.
Complexul dispune de parcare subterană în 3 nivele, 2 terenuri de joacă spațioase, havuz în curtea blocului.
Locație deosebită – ceea ce îl face foarte atractiv pentru o viață confortabilă.
Este situat între parcul Valea Morilor și parcul Dendrariu, la 7 min distanță de sectorul Centru.
Alte caracteristici
Balcon
Geamuri termopan
Grădiniţă
Imobil nou
Încălzire autonomă
Interfon
Internet
Ascensor
Școală
Supermarket
Teren de joacă
Uşă blindată
Cablu TV
Linie telefonică
Atenție! Clienții care aleg să cumpere prin O’Key Imobil se bucură de o gamă completă de servicii profesionale, oferite fără niciun cost suplimentar:
- Analiză corectă a pieței, pentru a ști exact valoarea reală a proprietății dorite;
- Verificare juridică atentă, cu pregătirea tuturor actelor necesare pentru o tranzacție sigură;
- Spațiul perfect pentru diverse tipuri de activități comerciale, logistică, cât și producere etc.
Vreau apartament în ipotecă!
Avem peste 745.000 de apartamente, oficii și terenuri.


















































