Acasă / Imobile în chirie /Vatra Vatra
Teren, VATRA
Teren: 50 Ari
Destinație: Pentru construcții
7 000 €
140 €/m2
Teren: 50 Ari
Destinație: Pentru construcții
Proprietăți
Regiune
Suburbii
Adresa
Vatra
Teren
50 Ari
Destinație
Pentru construcții
Descriere
Spre chirie teren amplasat în or. Vatra.
Lotul are suprafața de 50 ari (privatizat).
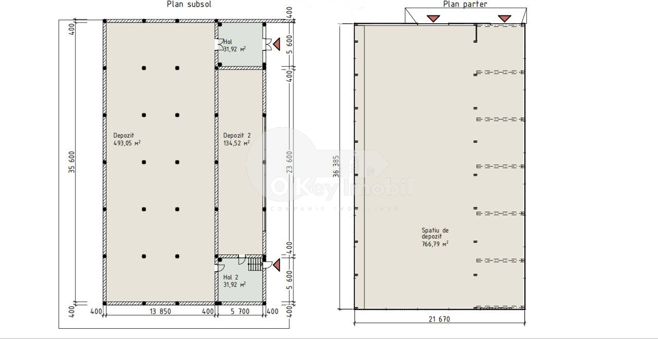
Pe teritoriul proprietății este amplasat un depozit.
Spațiul cuprinde suprafața de 1500 mp.
Caracteristici:
– Intrare separată;
– Locuri de parcare private (autoturisme cca 5-10);
– Loc de încărcare/descărcare (autocamioane);
– Sisteme de supraveghere video;
– Toate comunicațiile sunt racordate (electricitate – 150KW, apă, canalizare);
– Acces direct la transportul public. Drum asfaltat, intrare comodă pentru tir.
Zonă industrială dezvoltată.
Este perfect pentru producere și depozitare sau pentru autoservice.
Atenție! Clienții care aleg să cumpere prin O’Key Imobil se bucură de o gamă completă de servicii profesionale, oferite fără niciun cost suplimentar:
- Analiză corectă a pieței, pentru a ști exact valoarea reală a proprietății dorite;
- Verificare juridică atentă, cu pregătirea tuturor actelor necesare pentru o tranzacție sigură;
- Spațiul perfect pentru diverse tipuri de activități comerciale, logistică, cât și producere etc.
Vreau apartament în ipotecă!
Avem peste 745.000 de apartamente, oficii și terenuri.























